Op een aantrekkelijke en populaire locatie staat dit royale en recent verbouwde woonhuis, voorzien van een uitgebouwde woonkamer en een praktische aangebouwde berging. Precies het type woning waar u naar op zoek bent. In deze kindvriendelijke wijk vindt u alle dagelijkse voorzieningen binnen handbereik.
De ligging is ideaal: direct nabij het groene Siem Lutpark, op korte loopafstand van de bushalte richting Amsterdam, Hoorn en Purmerend, winkelcentrum De Stient en diverse basisscholen.
De woning beschikt over een eigen parkeerplaats op eigen erf, zodat u altijd verzekerd bent van een plek voor de deur, met bovendien de mogelijkheid om uw auto thuis op te laden. Ook op het gebied van duurzaamheid zit u hier goed: volledig geïsoleerd en voorzien van een uitstekend energielabel A.
Indeling
Begane grond
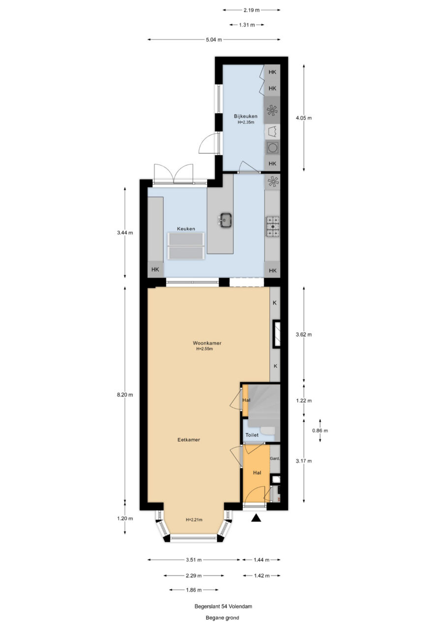
entree, hal, meterkast, modern toilet met closet. De ruime, uitgebouwde woonkamer is voorzien van een erker, hoogwaardige afwerkingen en een stijlvolle cinawall. In de uitbouw bevindt zich de moderne, luxe open keuken met inbouwapparatuur, veel daglicht en openslaande deuren. Aansluitend treft u de aangebouwde bijkeuken met inbouwkasten en de wasmachine-opstelling.
Eerste verdieping
overloop, twee slaapkamers en een badkamer voorzien van ligbad, closet en wastafel.
Tweede verdieping
overloop, ruime slaapkamer met dakkapel en een extra kamer met dakkapel die uitstekend kan dienen als inloopkast of extra slaapkamer. Daarnaast zijn er twee bergruimtes met de CV-opstelling.
Zolder
via vlizotrap bereikbare bergzolder.
Bent u op zoek naar een ruime en uitstekend onderhouden woning op een gewilde locatie? Neem dan snel contact op met RC Makelaars voor het plannen van een bezichtiging.
Kenmerken
Beschikbaarheid
- Status
- Beschikbaar
- Aanvaarding
- In overleg
- Vraagprijs
- € 575.000,- k.k.
Bouw
- Soort
- Eengezinswoning
- Type
- Tussenwoning
- Liggingen
- In woonwijk
- Bouwjaar
- 1991
- Inhoud
- 485 m3
Binnen
- Woonoppervlakte
- 146 m2
- Aantal kamers
- 6
- Slaapkamers
- 3
Buiten
- Perceeloppervlak
- 162 m2
- Tuintypen
- Achtertuin, Voortuin
- Soorten
- Geen garage
Verwarming
- Verwarming
- CV ketel, Vloerverwarming gedeeltelijk
- Warm water
- CV ketel



















































